Mieszkanie, 2 pokoje, ul. Sówki, Gdańsk

525 000,00 zł

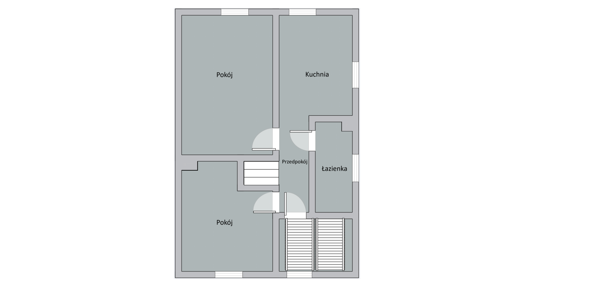
Oferujemy na sprzedaż dwupokojowe mieszkanie o powierzchni użytkowej 42,57 m2 wraz z pomieszczeniem przynależnym - strychem o dodatkowej powierzchni 12,29 m2 położone w Gdańsku przy ulicy Sówki 4.

W skład lokalu wchodzą: pokój dzienny (16,67 m2), pokój (11,50 m2), kuchnia (7,66 m2), łazienka z WC (3,27 m2), przedpokój (3,47 m2).


Istnieje możliwość powiększenia powierzchni użytkowej lokalu poprzez wykorzystanie strychu co pozwoli przyszłemu nabywcy na uzyskanie dodatkowego pomieszczenia (np. pokoju, garderoby).

Dodatkowym atutem sprzedawanej nieruchomości jest udział wielkości 44/100 części w prawie własności działki ewidencyjnej numer 60 o powierzchni 943 m2 na której posadowiony jest budynek.

Mieszkanie trójstronne , północ/wschód/południe. Bardzo ciepłe i słoneczne.

Informacje dodatkowe:
- forma własności: odrębna własność. Brak obciążeń hipotecznych
- mieszkanie znajduje się na pierwszym piętrze dwukondygnacyjnego budynku z lat 60 XX wieku.
- miejsca postojowe na terenie ogrodzonej posesji.
- czynsz wynosi około 450 złotych miesięcznie.
- ogrzewanie elektryczne (możliwość zmiany na gazowe)
- elastyczny termin wydania nieruchomości.

Lokalizacja


Mieszkanie znajduje się w budynku czterolokalowym wśród niskiej zabudowy jednorodzinnej na granicy dwóch dzielnic Gdańska: Stogi i Krakowiec-Górki Zachodnie. Naprzeciwko budynku znajduje się piękny las a w nim, już po pokonaniu około 5 minutowej trasy, możemy dotrzeć do jeziora leśnego Pusty Staw czyli miejsca idealnego na spacery z psem, uprawianie aktywnego wypoczynku czy po prostu chwilowego wyciszenia się na łonie natury.

Jeśli lubimy piesze wycieczki to już po 30 minutach możemy znaleźć się na jednej z najpiękniejszych plaż Zatoki Gdańskiej czyli plaży Stogi lub też pokonując nieco większą odległość znaleźć się na dzikiej plaży od strony zachodniej.

Dla tych bardziej wygodnych osób jest możliwość dojazdu samochodem lub przy wykorzystaniu komunikacji publicznej w około pięć minut.

Przystanek komunikacji autobusowej (linie: 111, 911, N8) znajduje się w odległości 300 m od budynku. Następny tymczasowy przystanek autobusowy (zamiast właściwego tramwajowego) oddalony jest o 500 m (linie: 158, 258, 911, T8). Do dworca PKP dzieli nas odległość 2,2 km
Do trasy S7 (węzeł Gdańsk Port) mamy 6,8 km. Do centrum: Gdańska zaledwie 5,6 km, Gdyni 26 km, Pruszcza Gdańskiego 16,5 km .
Najbliższa publiczne przedszkole znajduje się 650 m (Nr 16) od budynku a publiczna szkoła podstawowa oddalona jest zaledwie o 290 m (SP nr 72 ).
Dla fanów sportów wodnych ważną informacją będzie iż przystań żeglarska na Martwej Wiśle oddalona jest o kilometr od mieszkania a Narodowe Centrum Żeglarstwa AWFiS im. Dra. Krzysztofa Zawalskiego o 5,7 km.

Niniejszy materiał jest wyłącznie informacją handlową i nie stanowi oferty w myśl art. 66, 1. Kodeksu Cywilnego.

ZAPYTAJ O OFERTĘ